Nos preocupa tu privacidad En pisos.com utilizamos cookies propias y de terceros para dar un servicio satisfactorio mediante cookies técnicas, de personalización y para fines analíticos. pulsa AQUÍ para más información. Puedes aceptar todas las cookis pulsando el botón "aceptar" o configurarlas o rechazar su uso pulsando
Aceptar Rechazar todas Configurar
1.550.000 €
Chalet adosado en venta en Calle Comella
(La Comella. Andorra la Vella)
1.550.000 €
4 Habs
4 Baños
600 m2
  Imprimir
  Compartir
  Imprimir
  Compartir
 Llamar
 Contactar
Solicitar información del inmueble
 Contactar
Llámanos ahora
Descripción del inmueble
Casa adosada en un entorno exclusivo y privilegiado, a solo un minuto del centro

Descubre el privilegio de vivir en la única zona residencial del país con acceso cerrado y seguridad privada, un espacio reservado...
Casa adosada en un entorno exclusivo y privilegiado, a solo un minuto del centro

Descubre el privilegio de vivir en la única zona residencial del país con acceso cerrado y seguridad privada, un espacio reservado únicamente para los vecinos. Una ubicación excepcional a un paso del centro de Andorra la Vella, con vistas panorámicas a la vall y a las montañas.

Esta casa adosada, de casi 600 m², ofrece estancias amplias, luminosas y perfectamente distribuidas:

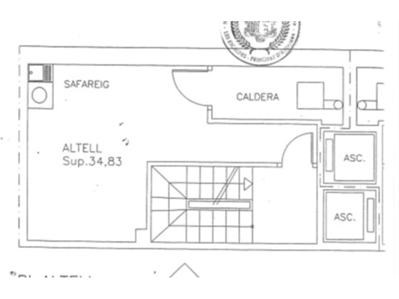
• Planta sótano: garaje para tres vehículos y espacio preparado para instalar ascensor.
• Planta semi-sótano: amplio lavadero y sala de máquinas.
• Planta baja: elegante recibidor, aseo de cortesía, cocina independiente, salón-comedor con chimenea y jardín privado de 77 m² con salida directa desde la cocina y el salón.
• Primera planta: tres dormitorios dobles y dos baños completos.
• Planta superior: acogedor salón o despacho, gran dormitorio tipo suite con baño y vestidor.

La propiedad incluye además unos 200 m² adicionales sin construir, ideales para diseñar tu propio espacio: gimnasio, bodega, sala de cine o aquello que siempre has soñado.

Rodeada de zonas comunes cuidadas al detalle, en un ambiente tranquilo y seguro, esta vivienda combina comodidad, intimidad, vistas excepcionales y la proximidad a todos los servicios.

Un lujo al alcance de muy pocos, en un entorno sencillamente incomparable.
Ver más
Características
  • Parking
  • Suroeste
  • Jardín
  • Calefacción
  • Terraza
  • Superficie útil: 600 m2
  • Referencia:5051550
Ver más
Localización
Calle Comella
Clasificación: Exento

Simula tu hipoteca

Calcular